Shell plating is the outer-most structure on the hull of a steel or aluminum ship or boat.
Strakes

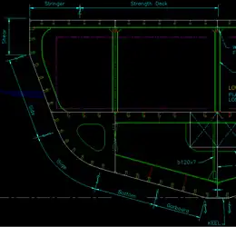
A strake is the name given to each line of planking in a wooden vessel.[1] In modern ship construction it refers to the longitudinal run of plating covering the hull, deck and bulkhead structure. Certain specific strakes are uniquely identified:
Keel: is a special strake of the Bottom plating extending from the centerplane outboard.
Bottom: the Bottom Shell plate strakes extend from the Keel to the Bilge.
Bilge: is the plating which transitions from the more-or-less horizontal Bottom Shell to the more-or-less vertical Side Shell and is generally curved. See also Chine (boating).
Side: is the plating which extends from the Bilge strake(s) to the Shear strake.
Shear: is a special strake of the Side plating. It is the strake that connects the Side Shell to the Strength Deck.
Stringer: is a special strake of the Strength Deck plating. It is the strake that connects the Strength Deck to the Side Shell.
Strength Deck: is a special deck. It is normally the uppermost continuous deck and forms the top flange of the hull girder.
See also
References
- ↑ Kemp, The Oxford Companion to Ships and the Sea , p. 838 (definition of 'strake').